◆2018年築の美邸◆JR横須賀線「保土ヶ谷」駅徒歩5分、利便性と快適さが融合する魅力のロケーション◆
神奈川県横浜市保土ケ谷区西久保町
[JR線] 横須賀線「保土ヶ谷駅」 徒歩5分
価格5,680万円
- 土地面積:69.8m2(21.11坪)
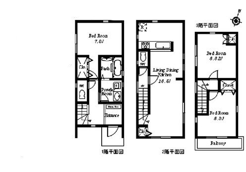
- 建物面積:93.15m2(28.18坪)
- 間取 :3LDK
- 築年月 :2018年7月
- 物件番号:10443709
物件確認日:2026/04/06 次回更新予定日:2026/05/06
お支払い例この物件を購入した場合の月々の支払い価格の一例です。
| 金利 | 借入金額 | 頭金 | ボーナス払い | 毎月の返済額 |
|---|---|---|---|---|
| 0.57% | 5,680万円 | 0円 | 0円 | 円 |
※元利均等方式の場合 ※返済年数35年として算出しています。 ※購入時の諸費用一覧はこちら
横浜市保土ケ谷区西久保町の中古一戸建て「横浜市保土ヶ谷区西久保町 中古戸建」の物件概要
| 物件名称 | 横浜市保土ヶ谷区西久保町 中古戸建 | ||
|---|---|---|---|
| 物件所在地 | 横浜市保土ケ谷区西久保町 | ||
| 交通 | [JR線] 横須賀線「保土ヶ谷駅」 徒歩5分 | ||
| 価格 | 5,680万円 | 土地面積 | 69.8m2(21.11坪) | 建物面積 | 93.15m2(28.18坪) |
| 間取 | 3LDK | 建物構造 | 木造3階建て |
| 築年月 | 2018年7月 | 用途地域 | 第二種中高層住居専用地域 |
| 都市計画 | 市街化区域 | 現況 | 居住中 |
| 接道状況 | 南3.7m | セットバック | 0.74m2 |
| 建ぺい率 | 60% | 容積率 | 150% |
| 私道面積 | 0.74m2 | ||
| 引渡予定時期 | 相談 | ||
| 小学校区 | 横浜市立富士見台小学校、横浜市立帷子小学校、横浜市立保土ケ谷小学校 | 中学校区 | 横浜市立岩崎中学校、横浜市立岩井原中学校 |
| 土地権利 | 所有権 | 取引形態 | 専任 |
| リフォーム | リノベーション | ||
| 設備等 | 都市ガス、公営水道、排水(下水)、閑静な住宅地、南側道路面す、浴室乾燥機、浴室1坪以上、浴室に窓、全室2面採光、通風良好、陽当り良好、周辺交通量少なめ、スーパー 徒歩10分以内、全居室フローリング、LDK15畳以上、トイレ2ヶ所、システムキッチン、食器洗乾燥機、浄水器、複層ガラス | ||
| 購入後の諸費用 | |||
| 備考 | 準防火地域 | ||
| 物件番号 | 10443709 | 物件確認日 | 2026/04/06 |
学校から検索した際に表示される物件は、学区の変更等により実際とは異なる場合がございます。予めご了承下さい。
また、お問い合わせ頂きました際には、必ず担当者に正確な学校をご確認下さいます様、お願い申し上げます。
また、お問い合わせ頂きました際には、必ず担当者に正確な学校をご確認下さいます様、お願い申し上げます。
最寄駅周辺のご案内
無料で登録出来るゴールドメンバー会員なら物件地図をピンポイントで表示出来ます。
ログイン・会員登録はこちら
※本サービスはGoogle MAPを使用した現地の目安であり、必ずしも現地とは限りません。また、表示されない場合もございます。

WEBでも簡単資料請求!24時間受付!
条件の近い物件

横浜市保土ケ谷区法泉3丁目
東戸塚駅2,580万円

横浜市保土ケ谷区新井町
西谷駅2,799万円

横浜市南区清水ケ丘
保土ケ谷駅2,880万円

横浜市保土ケ谷区上星川2丁目
上星川駅3,000万円







