ガレージハウスで趣味時間を満喫。渋谷18分、横浜9分の綱島駅7分と便利さも魅力!綱島公園(950m)をはじめ、周辺には自然豊かな公園が点在、鶴見川沿いの豊かな自然環境も、子育て世帯を中心に人気を集めています。
神奈川県横浜市港北区大曽根2丁目
[東京急行電鉄] 東急東横線「綱島駅」 徒歩8分
価格9,280万円(税込)
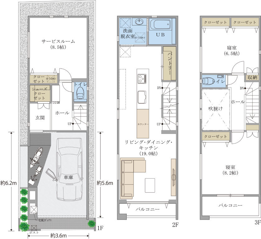
- 土地面積:68.24m2(20.64坪)
- 建物面積:113.08m2(34.21坪)
- 間取 :3LDK
- 築年月 :2026年2月
- 物件番号:10438714
物件確認日:2026/04/11 次回更新予定日:2026/05/11
お支払い例この物件を購入した場合の月々の支払い価格の一例です。
| 金利 | 借入金額 | 頭金 | ボーナス払い | 毎月の返済額 |
|---|---|---|---|---|
| 0.57% | 9,280万円 | 0円 | 0円 | 円 |
※元利均等方式の場合 ※返済年数35年として算出しています。 ※購入時の諸費用一覧はこちら
横浜市港北区大曽根2丁目の新築一戸建て「プレミアムレジデンス綱島」の物件概要
| 物件名称 | プレミアムレジデンス綱島 | ||
|---|---|---|---|
| 物件所在地 | 横浜市港北区大曽根2丁目 | ||
| 交通 | [東京急行電鉄] 東急東横線「綱島駅」 徒歩8分 | ||
| 交通2 | [その他] 東急新横浜線「新綱島駅」 徒歩7分 | ||
| 交通3 | [JR線] 東海道本線「川崎駅」バス28分 大綱橋 停歩3分 | ||
| 価格 | 9,280万円(税込) | ||
| 総戸数/販売戸数 | 総戸数:全3戸 販売戸数:3戸 | ||
| 土地面積 | 68.24m2(20.64坪) | 建物面積 | 113.08m2(34.21坪) |
| 間取 | 3LDK | 建物構造 | 木造3階建て |
| 築年月 | 2026年2月 | 用途地域 | 第一種住居地域 |
| 都市計画 | 市街化区域 | 現況 | 完成済 |
| 接道状況 | 南西4m | セットバック | なし |
| 建ぺい率 | 60% | 容積率 | 200% |
| 建築確認番号 | 第24UDI1K建01630 | 引渡予定時期 | 即時 |
| 小学校区 | 横浜市立大曽根小学校 | 中学校区 | 横浜市立樽町中学校 |
| 土地権利 | 所有権 | 取引形態 | 売主 |
| 設備等 | 都市ガス、公営水道、排水(下水)、整形地、緑豊かな住宅地、閑静な住宅地、平坦地、都市近郊、地盤調査済、市街地が近い、浴室乾燥機、浴室1坪以上、浴室に窓、南向き、全室2面採光、通風良好、陽当り良好、フラット35Sに対応、ビルトインガレージ、EV車充電設備、周辺交通量少なめ、整備された歩道、スーパー 徒歩10分以内、総合病院 徒歩10分以内、小学校 徒歩10分以内、全居室フローリング、長期優良住宅認定通知書、LDK18畳以上、駅まで平坦、2沿線以上利用可、トイレ2ヶ所、都市ガス、対面式キッチン、食器洗乾燥機、省エネルギー対策、複層ガラス | ||
| 購入後の諸費用 | |||
| 備考 | 宅地造成工事規制区域、準防火地域 | ||
| 物件番号 | 10438714 | 物件確認日 | 2026/04/11 |
学校から検索した際に表示される物件は、学区の変更等により実際とは異なる場合がございます。予めご了承下さい。
また、お問い合わせ頂きました際には、必ず担当者に正確な学校をご確認下さいます様、お願い申し上げます。
また、お問い合わせ頂きました際には、必ず担当者に正確な学校をご確認下さいます様、お願い申し上げます。
最寄駅周辺のご案内
無料で登録出来るゴールドメンバー会員なら物件地図をピンポイントで表示出来ます。
ログイン・会員登録はこちら
※本サービスはGoogle MAPを使用した現地の目安であり、必ずしも現地とは限りません。また、表示されない場合もございます。

WEBでも簡単資料請求!24時間受付!
条件の近い物件

横浜市港北区小机町
小机駅4,190万円

横浜市港北区新吉田町
東山田駅4,380万円

横浜市港北区下田町5丁目
高田駅4,390万円

横浜市港北区小机町
小机駅4,480万円







